Statensingel

Prijs : € 1400

Maastricht


Statensingel Ga naar Directwonen-nl

voor € 1400

Bekijk alle informatie en beschikbaarheid bij Directwonen-nl.

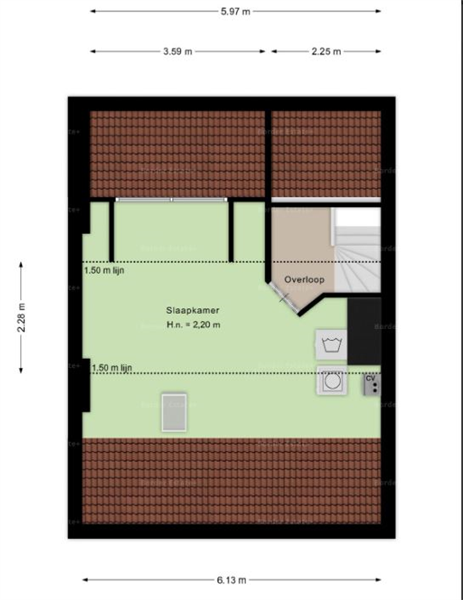
Charmant appartement met karakter en uitzicht op de skyline van Maastricht Aan de statige Statensingel, een van de mooiste lanen van de stad, ligt dit sfeervolle appartement. Het huis ademt de grandeu...