Limburglaan

Prijs : € 1015

Eindhoven


Limburglaan Ga naar Directwonen-nl

voor € 1015

Bekijk alle informatie en beschikbaarheid bij Directwonen-nl.

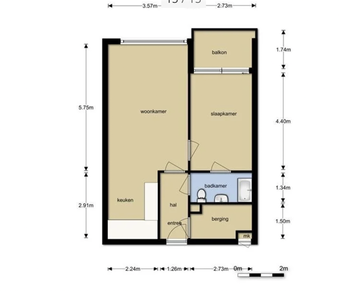
Omgeven door groen, dicht bij het stadscentrum bieden wij een ruime en lichte 1 slaapkamer appartement (ongeveer 60 m2) met balkon en met een lift. Geweldig uitzicht en goede verbinding richting het s...