Sint Annalaan

Prijs : € 582

Maastricht

Onbekend


Sint Annalaan Ga naar Huurportaal-nl

voor € 582

Bekijk alle informatie en beschikbaarheid bij Huurportaal-nl.

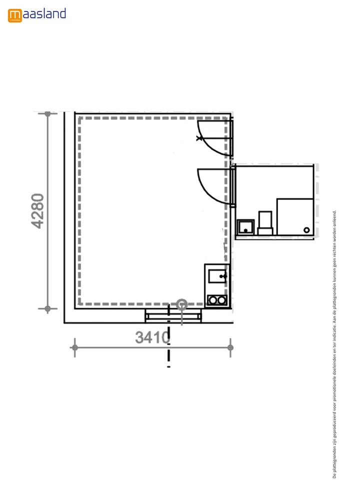
First-floor studio consisting of a living/sleeping area with an open kitchen equipped with appliances, a bathroom with a shower, washbasin, and wall-mounted toilet. There is also a shared outdoor spac...