Apartment For Rent In Koningsplein 3A, 6224 EB Maastricht

Prijs : € 676

Maastricht

Onbekend


Apartment For Rent In Koningsplein 3A, 6224 EB Maastricht Ga naar Huurportaal-nl

voor € 676

Bekijk alle informatie en beschikbaarheid bij Huurportaal-nl.

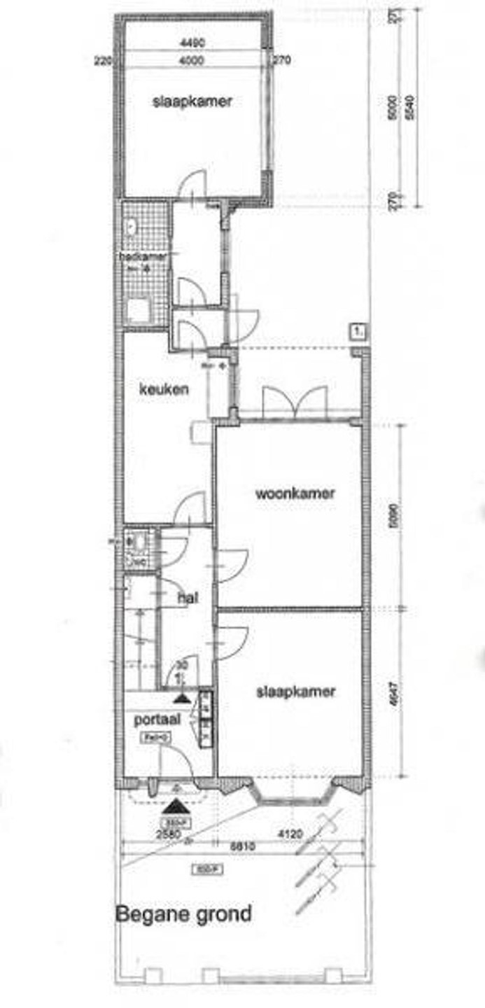
TE HUUR - 2 STUDENTENKAMERS 2 Kamers te huur in ruime benedenverdieping met tuin op het zuiden vlakbij het station en de A2. Perfecte ligging: in luttele minuten ben je op de autoweg, bij het station ...