LIV Residential - Woning Insulindeweg 105-H, Amsterdam In Amsterdam Amsterdam

Prijs : € 2300

Amsterdam

Onbekend


LIV Residential - Woning Insulindeweg 105-H, Amsterdam In Amsterdam Amsterdam Ga naar Huurportaal-nl

voor € 2300

Bekijk alle informatie en beschikbaarheid bij Huurportaal-nl.

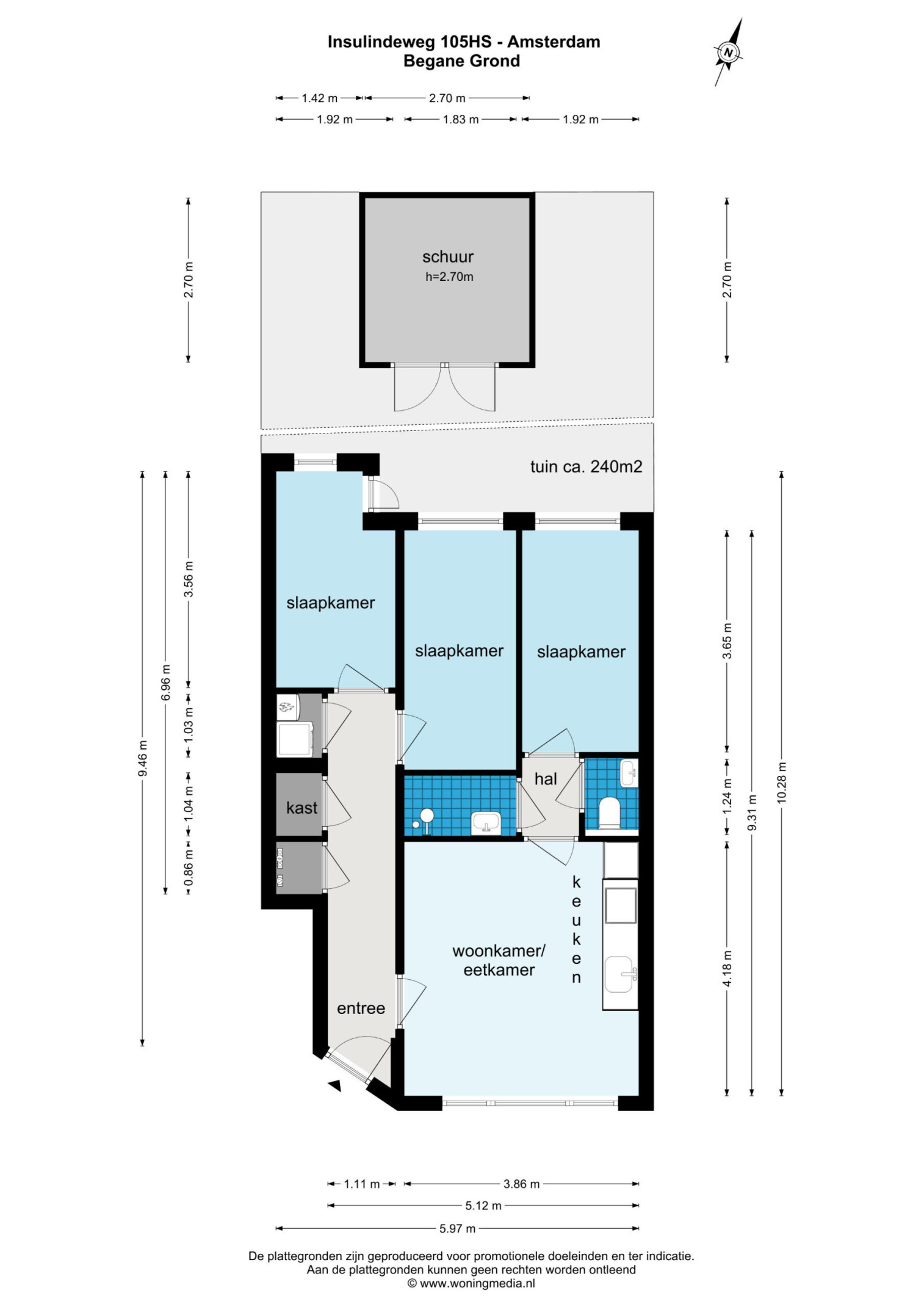
Apartment overview Appartement aan Insulindeweg 105-H in Amsterdam . Dit appartement biedt 3 kamers met een gebruiksoppervlakte van circa 55 m². 🏠 Het gebouw is gerealiseerd rond 1924 . De indeli...