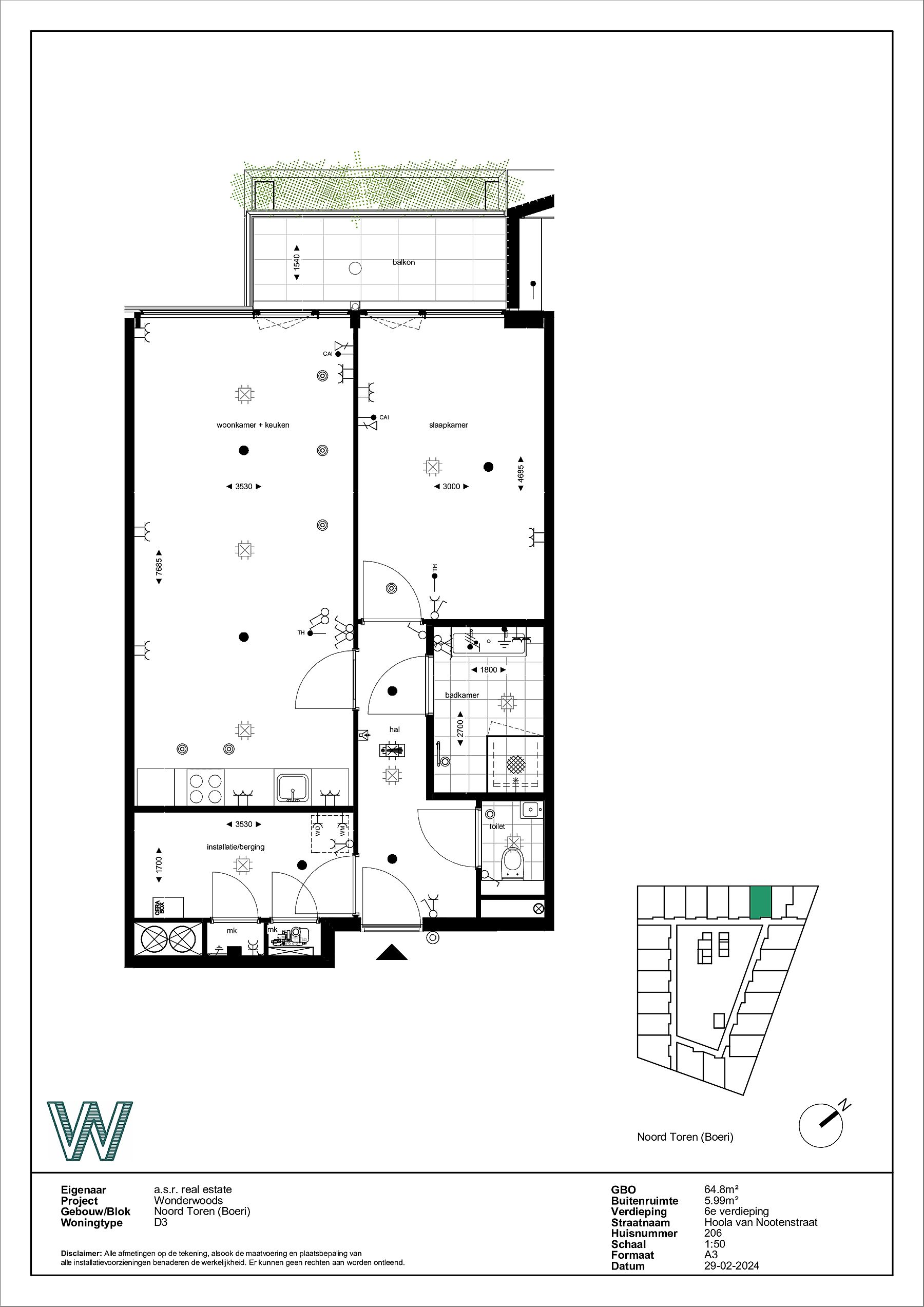
1 Bedroom Apartment For Rent In Hoola Van Nootenstraat 134 3521 HB Utrecht

Prijs : € 1485

Utrecht

Onbekend


1 Bedroom Apartment For Rent In Hoola Van Nootenstraat 134 3521 HB Utrecht Ga naar Huurportaal-nl

voor € 1485

Bekijk alle informatie en beschikbaarheid bij Huurportaal-nl.

Sfeervol 2-kamerappartement op een fijne plek in UtrechtWil je wonen midden in Utrecht, met alles dichtbij? Dit gezellige en goed ingedeelde 2-kamerappartement aan de geliefde Hoola van Nootenstraat i...