Apartment For Rent In Fultonbaan 5-14 3439NE Nieuwegein Rijnhuizen Nieuwegein

Prijs : € 1550

Nieuwegein

Onbekend


Apartment For Rent In Fultonbaan 5-14 3439NE Nieuwegein Rijnhuizen Nieuwegein Ga naar Huurportaal-nl

voor € 1550

Bekijk alle informatie en beschikbaarheid bij Huurportaal-nl.

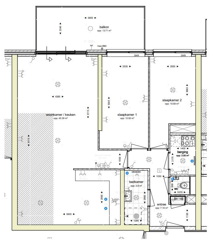
TE HUUR: Fultonbaan 5-14 Nieuwegein Huurprijs: €1.550 excl. €75,- servicekosten en €60,- voorschot stookkosten Beschikbaar per RIJNFORT NIEUWEGEIN Een bijzonder project op een mooie locatie. Dat is h...