Apartment For Rent In Janssteeg 6- 6811GC Arnhem Rijnstraat Arnhem

Prijs : € 2325

Arnhem

Onbekend


Apartment For Rent In Janssteeg 6- 6811GC Arnhem Rijnstraat Arnhem Ga naar Huurportaal-nl

voor € 2325

Bekijk alle informatie en beschikbaarheid bij Huurportaal-nl.

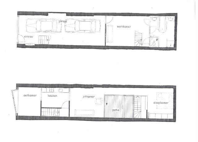
Waar vind je in hartje centrum van Arnhem een gemeubileerde woning met twee royale slaapkamers en een ruime garage? Met alle faciliteiten, de leukste restaurantjes om de hoek maar toch rustig gelegen?...