Apartment For Rent In Lage Bothofstraat 260- 7533AT Enschede Velve-Lindenhof Enschede

Prijs : € 1245

Enschede

Onbekend


Apartment For Rent In Lage Bothofstraat 260- 7533AT Enschede Velve-Lindenhof Enschede Ga naar Huurportaal-nl

voor € 1245

Bekijk alle informatie en beschikbaarheid bij Huurportaal-nl.

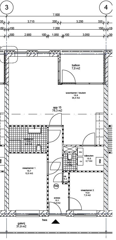
Wonen op een gewilde en centrale locatie in Enschede? Dat kan in dit instapklare 3-kamer appartement op de tweede verdieping! Het moderne appartementencomplex is eind 2020 opgeleverd, uitstekend geïso...