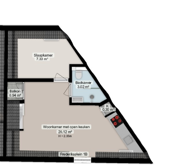
Woning Te Huur: Frederiksplein 1 9724NH Groningen

Prijs : € 1130

Groningen

Onbekend


Woning Te Huur: Frederiksplein 1 9724NH Groningen Ga naar Huurportaal-nl

voor € 1130

Bekijk alle informatie en beschikbaarheid bij Huurportaal-nl.

Per direct komen er drie compleet gerenoveerde appartementen te huur met één slaapkamer aan het Fredriksplein in Groningen. Locatie: De appartementen zijn gelegen in de gezellige Oosterpoortbuurt in G...