Appartement Te Huur Stationsplein 5 M In Almere Voor € 1.450

Prijs : € 1450

Almere

Onbekend


Appartement Te Huur Stationsplein 5 M In Almere Voor € 1.450 Ga naar Huurportaal-nl

voor € 1450

Bekijk alle informatie en beschikbaarheid bij Huurportaal-nl.

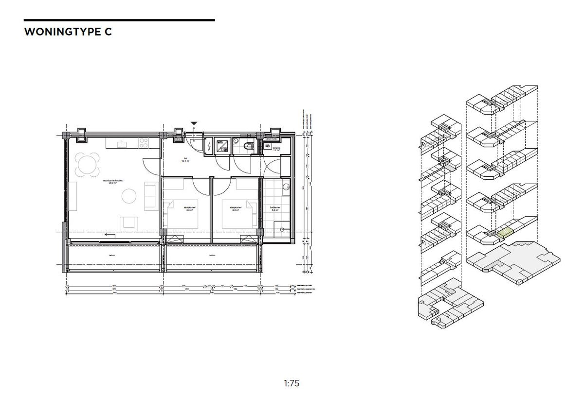
Beschrijving TE HUUR Stationsplein 5 M, 3 kamer appartement op de 1e verdieping, woonoppervlakte 72 m² Perfecte ligging ten opzichte van Amsterdam, directe verbinding naar Almere in: 19 minuten van...