Bekijk alle informatie en beschikbaarheid bij Huurportaal-nl.
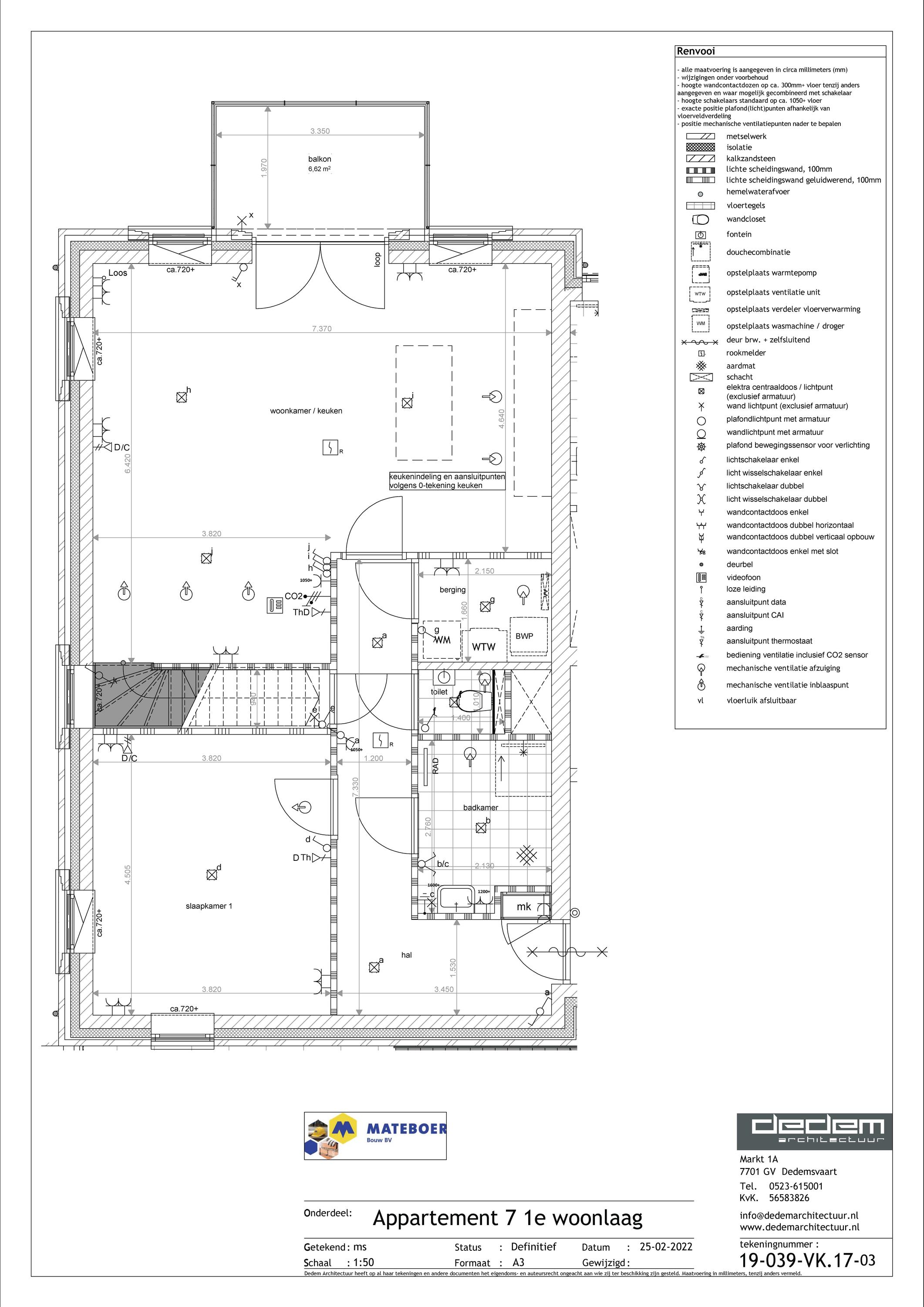
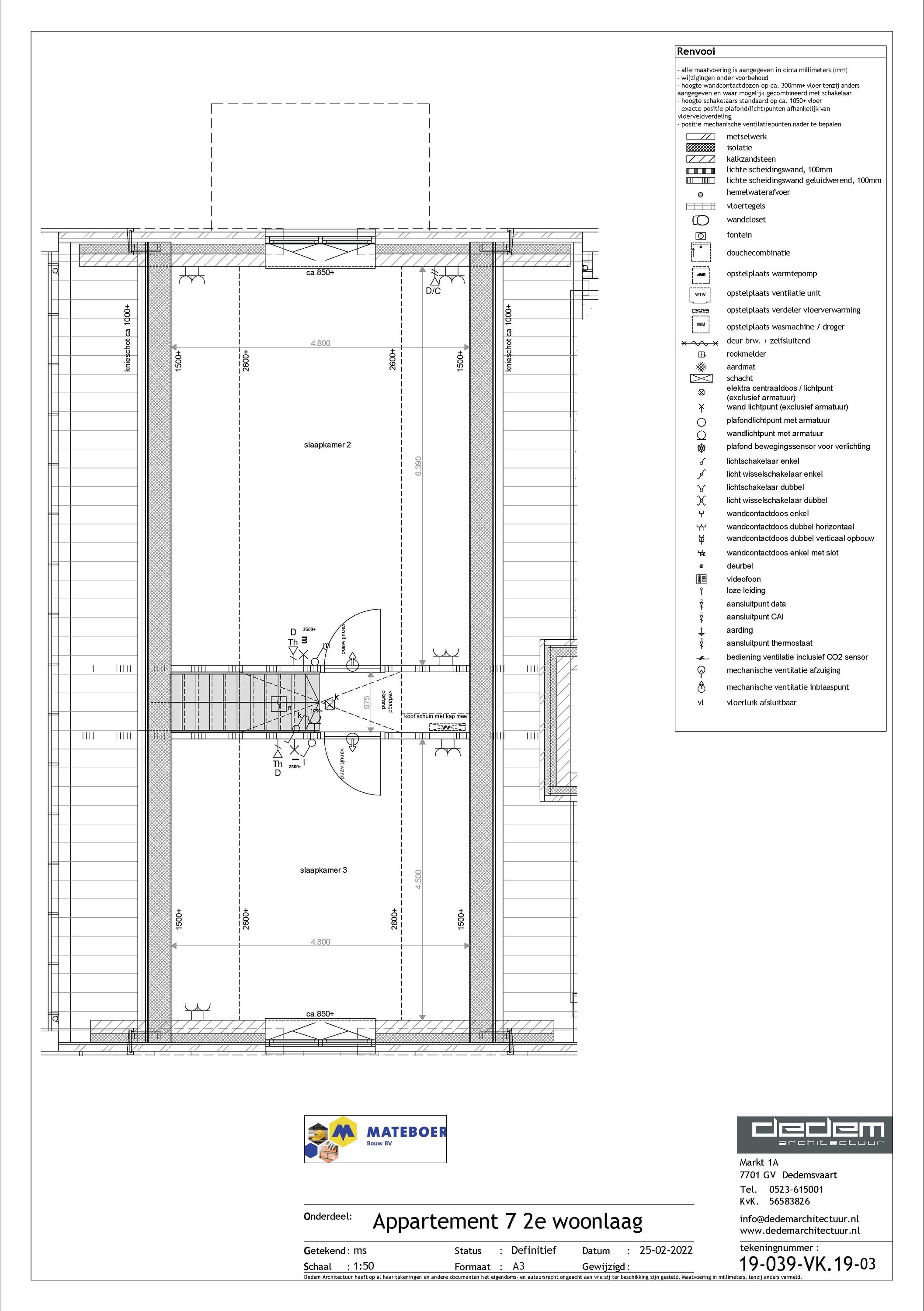
Wonen op niveau in een moderne, duurzame maisonnette uit 2024 - te koop én te huur. Deze royale maisonnette is gelegen op de tweede en derde verdieping van een gloednieuw gebouw en combineert ruimte,...