Apartment For Rent In Meijlingplein 63- 7553RA Hengelo (O) Berflo Es Noord Hengelo (OV)

Prijs : € 1345

Hengelo

Onbekend


Apartment For Rent In Meijlingplein 63- 7553RA Hengelo (O) Berflo Es Noord Hengelo (OV) Ga naar Huurportaal-nl

voor € 1345

Bekijk alle informatie en beschikbaarheid bij Huurportaal-nl.

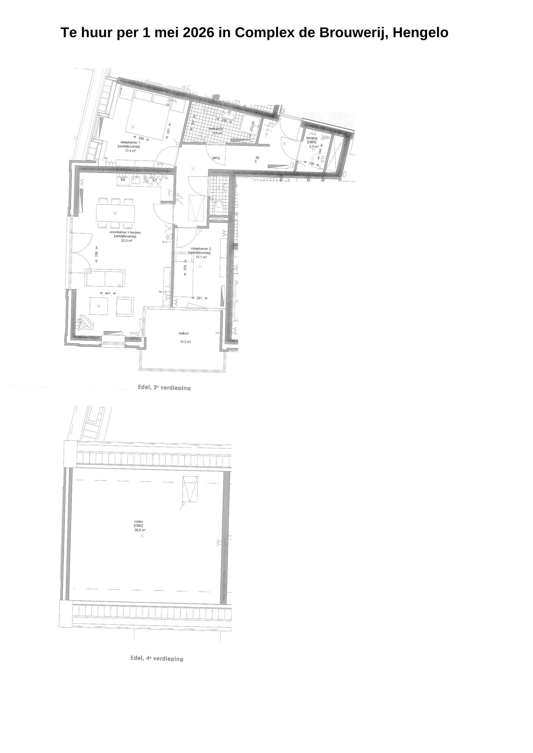
Ingang huur 1 mei 2026 Beschikbaar per 1 mei 2026: Uitstekend gelegen ruim 3-kamer appartement op de derde verdieping: woonkamer met open keuken en balkon, 2 slaapkamers, een ruime badkamer, een ruim...