Admiraal De Ruijterweg

Prijs : € 4500

Amsterdam

Appartement


Admiraal De Ruijterweg Ga naar Huurstunt-nl

voor € 4500

Bekijk alle informatie en beschikbaarheid bij Huurstunt-nl.

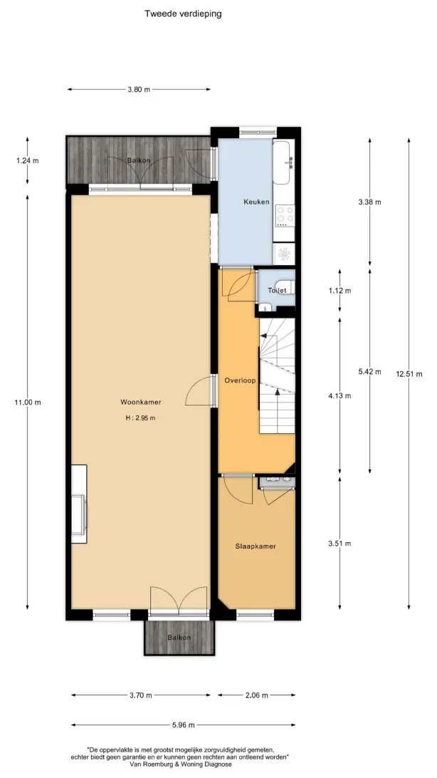
*** Interesse enkel via e-mail kenbaar maken! / Express interest by email only! *** Nieuw te huur! Wij mogen u aanbieden dit dubbele bovenhuis met eigen opgang voorzien van 4 slaapkamers! INDELING Be...