Adriaan Loosjesstraat

Prijs : € 2250

Amsterdam

Huurwoning


Adriaan Loosjesstraat Ga naar Huurstunt-nl

voor € 2250

Bekijk alle informatie en beschikbaarheid bij Huurstunt-nl.

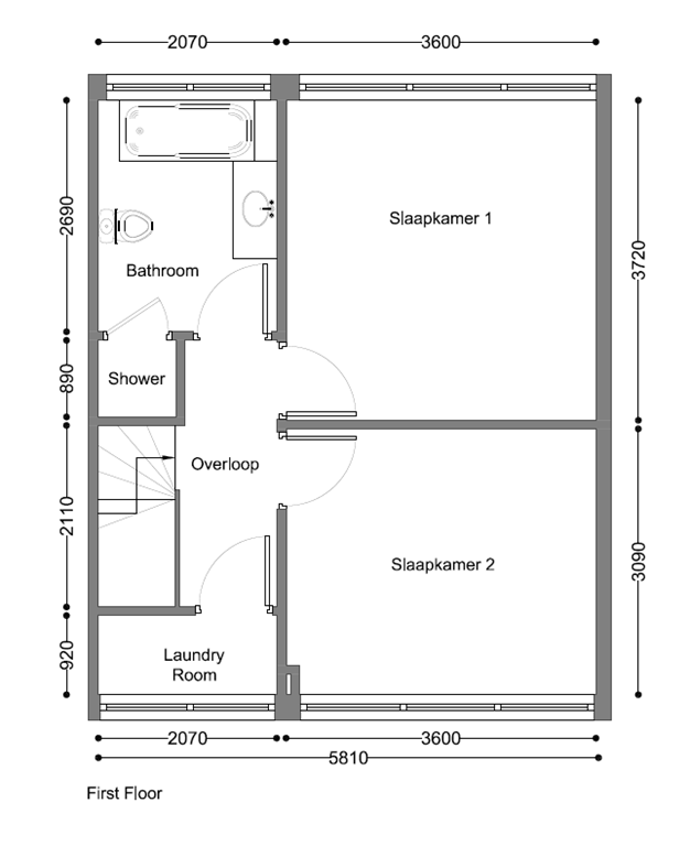
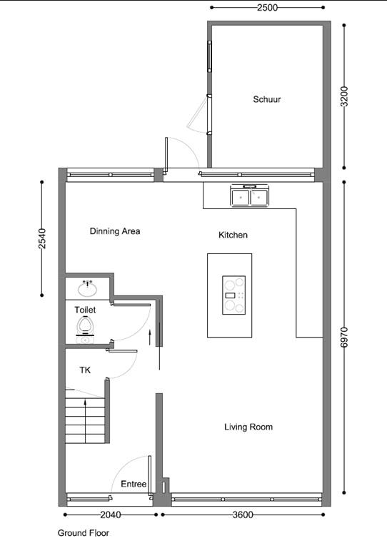
PLEASE NOTE: This property is only available from 01-01-2026 to 03-04-2026 Cozy and renovated 2-bedroom family house with spacious garden available in Amsterdam Noord. Only 2 minutes away from Molenwi...