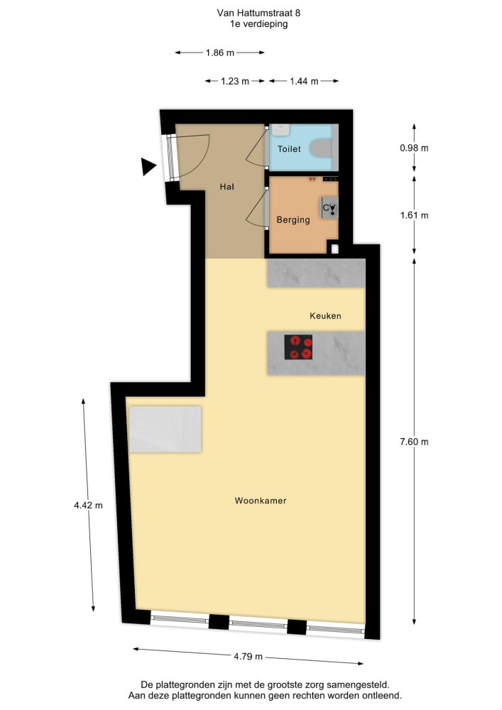
Van Hattumstraat

Prijs : € 1400

Zwolle

Appartement


Van Hattumstraat Ga naar Huurstunt-nl

voor € 1400

Bekijk alle informatie en beschikbaarheid bij Huurstunt-nl.

SHORT STAY - LUXE GEMEUBILEERDE APPARTEMENTEN IN HARTJE ZWOLLE Op zoek naar tijdelijke woonruimte op een unieke locatie in Zwolle? Wij bieden drie hoogwaardige, volledig gemeubileerde appartementen mi...