Grasweg Ga naar Huurstunt-nl

voor € 2600

Bekijk alle informatie en beschikbaarheid bij Huurstunt-nl.

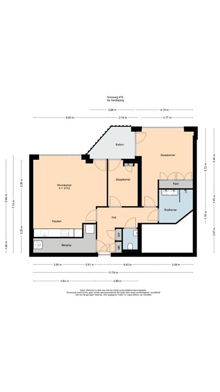
Gorgeous upholstered 2 bedroom apartment (built in 2025 with A+++ label)! This apartment has gorgeous parquet floors and floor heating. It has floor to ceiling windows and a balcony overlooking the IJ...