Apartment At Utrecht

Prijs : € 1385

Utrecht

Onbekend


Apartment At Utrecht Ga naar Huurportaal-nl

voor € 1385

Bekijk alle informatie en beschikbaarheid bij Huurportaal-nl.

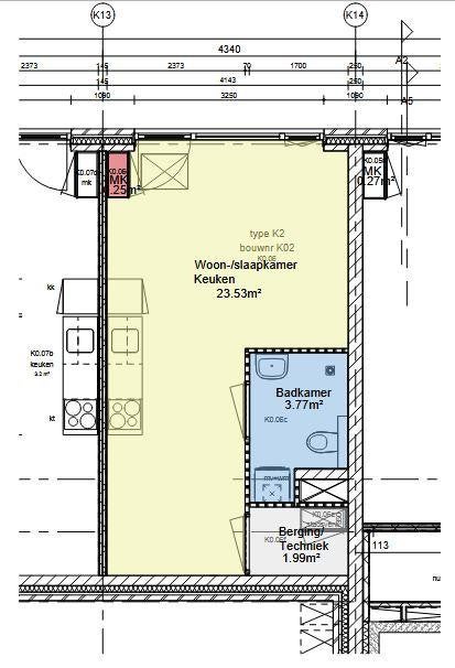
Te huur! Prachtige studio van circa 30m2 op een zeer gunstige locatie. Zo bent u binnen 5 minuten fietsafstand (15 minuten lopen) in het centrum, binnen 3 minuten bij de oude molen in de populaire Utr...