1 Bedroom Apartment For Rent In Verspronckweg 150-C35 2023 BP Haarlem

Prijs : € 1790

Haarlem

Onbekend


1 Bedroom Apartment For Rent In Verspronckweg 150-C35 2023 BP Haarlem Ga naar Huurportaal-nl

voor € 1790

Bekijk alle informatie en beschikbaarheid bij Huurportaal-nl.

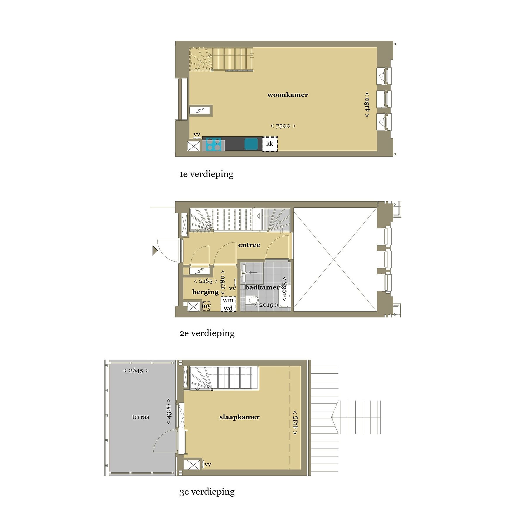
1-slaapkamer maisonnette met een woonoppervlakte van 68 m2. Bevat een standaard rechte keuken onder entresolvloer met bovenkasten. De woning heeft een badkamer met (inloop)douche, wastafel en spiegel....