Efferen 102 Uden

Prijs : € 1445

Uden

Onbekend


Efferen 102 Uden Ga naar Huurportaal-nl

voor € 1445

Bekijk alle informatie en beschikbaarheid bij Huurportaal-nl.

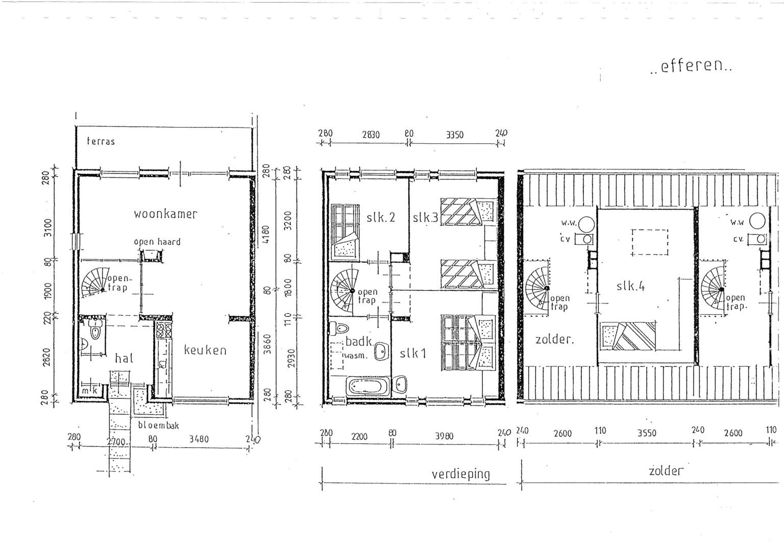
*Ruime, duurzame eengezinswoning* De woning is gelegen in Uden-Oost. Uden ligt in de driehoek Nijmegen/Arnhem - 's-Hertogenbosch - Eindhoven/Helmond. Met de auto ben je dus zo in een van deze grotere ...