Bekijk alle informatie en beschikbaarheid bij Huurportaal-nl.
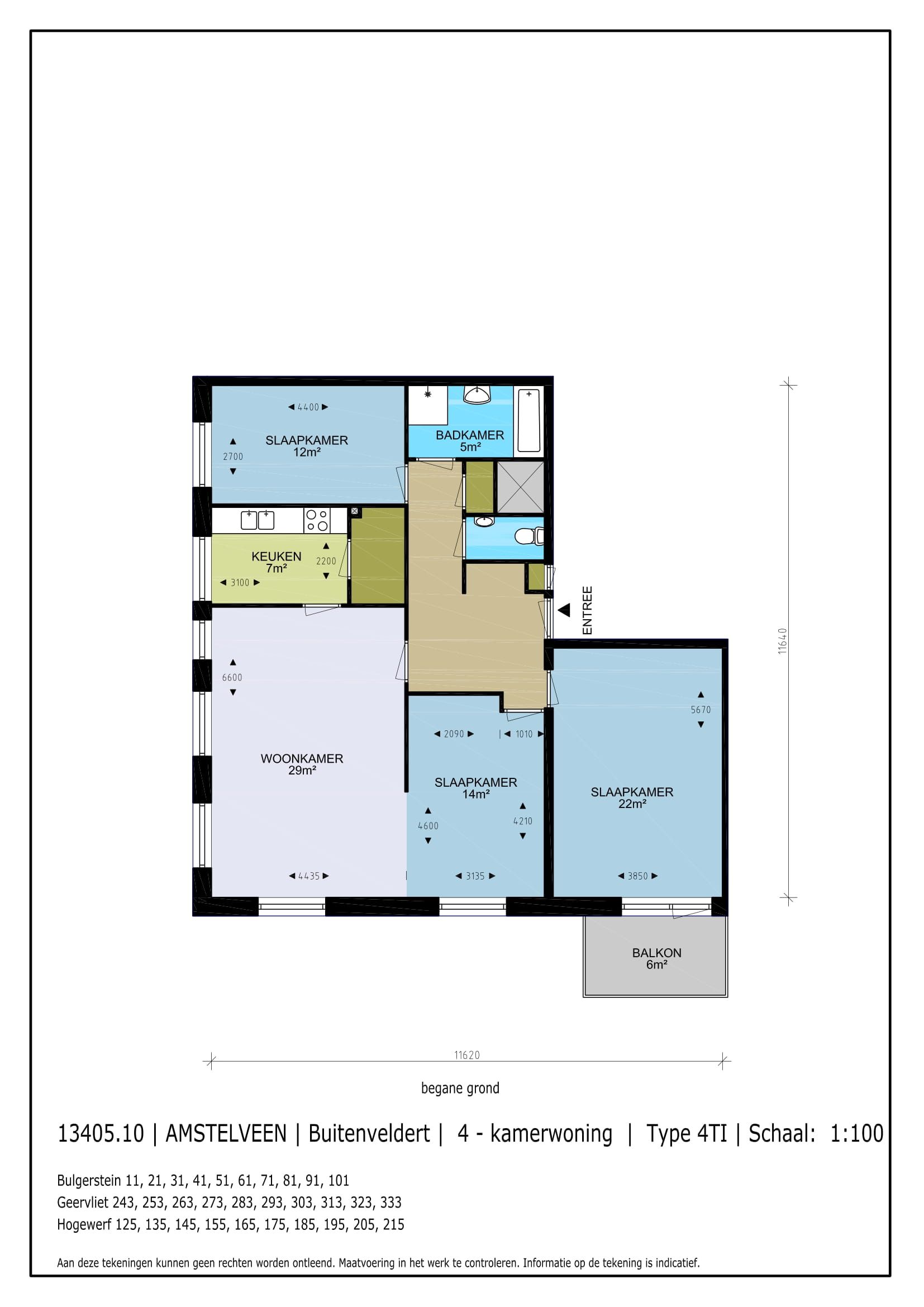
Appartement met 3 slaapkamers in Buitenveldert van 108 m². De woning is voorzien van onder andere een open keuken met diverse inbouwapparatuur, een moderne badkamer met ligbad en inloopdouche, 3 slaap...