Apartment For Rent In Garietstraat 255- 3813BM Amersfoort Vuurtoren Amersfoort

Prijs : € 1111

Amersfoort

Onbekend


Apartment For Rent In Garietstraat 255- 3813BM Amersfoort Vuurtoren Amersfoort Ga naar Huurportaal-nl

voor € 1111

Bekijk alle informatie en beschikbaarheid bij Huurportaal-nl.

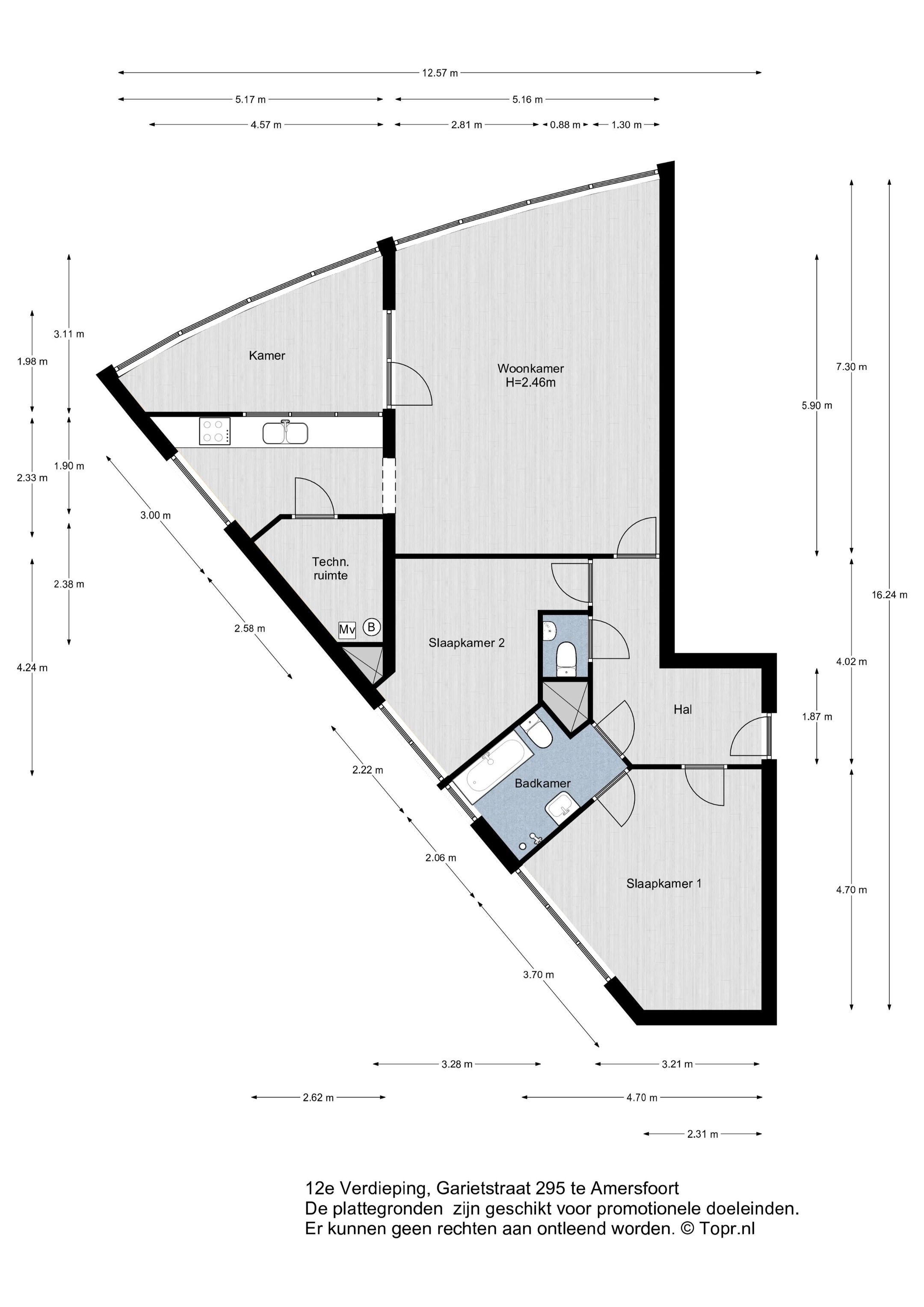
Om voor deze woning in aanmerking te komen is uw leeftijd minimaal 50 jaar Wonen met uitzicht én comfort - op een fijne plek in Schothorst! Op de 6e verdieping van dit verzorgde complex vind je een ru...