LIV Residential - Woning Escherstraat 19 3335 DC ZWIJNDRECHT In Zwijndrecht Zwijndrecht

Prijs : € 1450

Zwijndrecht

Onbekend


LIV Residential - Woning Escherstraat 19 3335 DC ZWIJNDRECHT In Zwijndrecht Zwijndrecht Ga naar Huurportaal-nl

voor € 1450

Bekijk alle informatie en beschikbaarheid bij Huurportaal-nl.

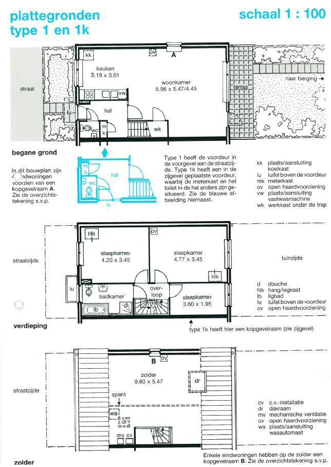
Apartment overview Gezinswoning aan Escherstraat 19 3335 DC ZWIJNDRECHT in Zwijndrecht . Dit gezinswoning biedt 4 kamers met een gebruiksoppervlakte van circa 130 m². 🏠 Het gebouw is gerealiseerd...