Bekijk alle informatie en beschikbaarheid bij Huurportaal-nl.
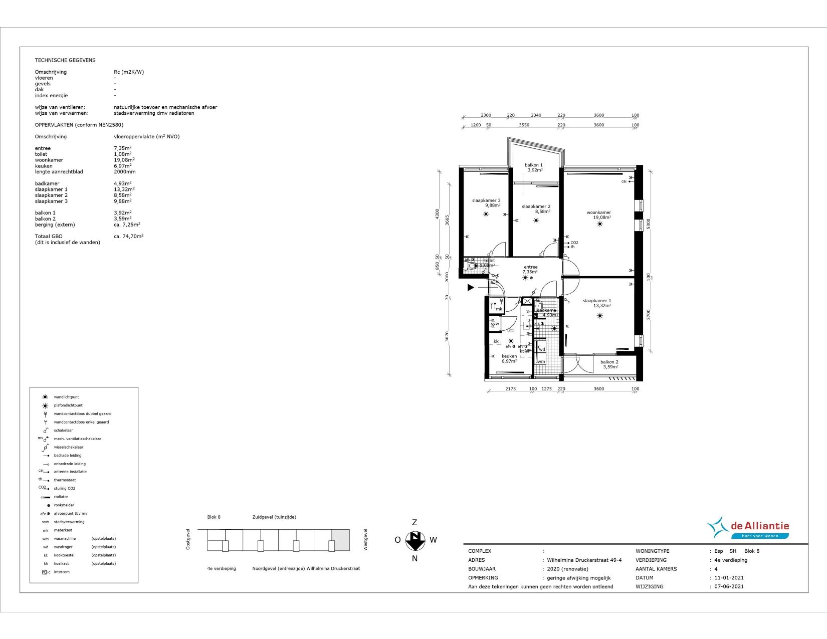
U HEEFT EEN OBJECTCODE NODIG ALS U ONS BELT. DE CODE IS: 6 **VOORRANG INDIEN U EEN SOCIALE HUURWONING ACHTERLAAT** Ruim en licht appartement met 4-kamers gelegen in Staalmanbuurt/Slotervaart Zuid. Het...