Huis Te Huur Dr. Abraham Kuyperlaan In Veghel Voor € 1.675

Prijs : € 1675

Veghel

Onbekend


Huis Te Huur Dr. Abraham Kuyperlaan In Veghel Voor € 1.675 Ga naar Huurportaal-nl

voor € 1675

Bekijk alle informatie en beschikbaarheid bij Huurportaal-nl.

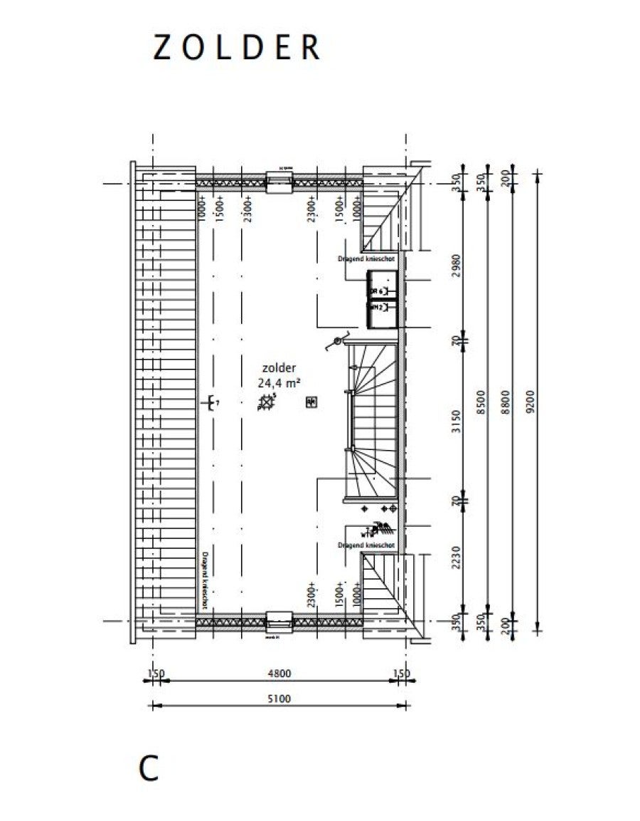
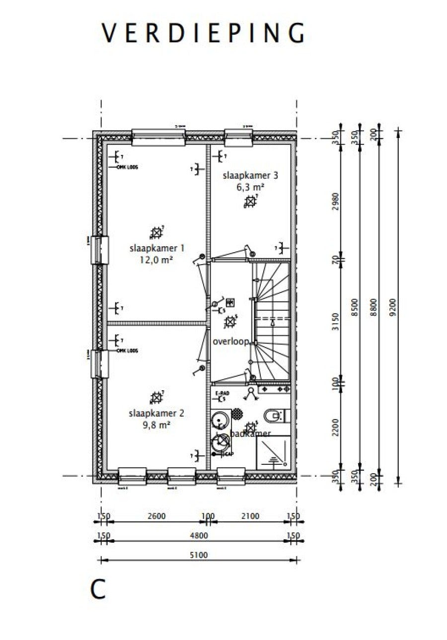
Beschrijving Beschikbaar per 1 februari 2026 | Prachtige hoekwoning in Veghel. Locatie: De woning bevindt zich nabij het centrum van Veghel, met alle benodigde voorzieningen binnen handbereik. Denk...