Apartment At Kalvermarkt Zuid-Holland Den Haag 2511 CB

Prijs : € 2085

The Hague

Onbekend


Apartment At Kalvermarkt Zuid-Holland Den Haag 2511 CB Ga naar Huurportaal-nl

voor € 2085

Bekijk alle informatie en beschikbaarheid bij Huurportaal-nl.

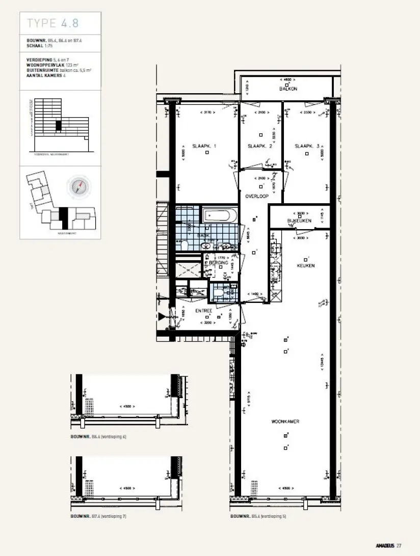
Kalvermarkt 12-H - Chique wonen in het hart van Den Haag! Driekamerappartement van circa 125 m² Riant vierkamerappartement: Dit ruime vierkamerappartement heeft een woonoppervlak van ca. 125 m² en is...