Bekijk alle informatie en beschikbaarheid bij Huurportaal-nl.
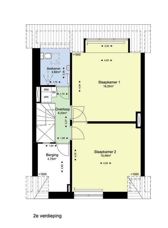
TOP WONING! Fijn 4-kamer appartement met potentie van ca. 100m2 met een eigen entree vanaf de begane grond en een balkon op het oosten! Omgeving: Deze woning ligt in het pittoreske Vogeldorp, met tall...