Appartement Te Huur Dominicushof 1 A In Roermond Voor € 1.450

Prijs : € 1450

Roermond

Onbekend


Appartement Te Huur Dominicushof 1 A In Roermond Voor € 1.450 Ga naar Huurportaal-nl

voor € 1450

Bekijk alle informatie en beschikbaarheid bij Huurportaal-nl.

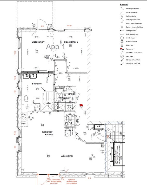
Beschrijving Moderne en duurzame, instapklaar nieuwbouwappartement in hartje Maasniel, Roermond (90 m2) met privé tuin van maar liefst 236 m² met Wadi (energielabel A+++) In het hart van Maasniel s...