Apartment For Rent In Voorstraat 98-B 2685EP Westland Poeldijk Centrumgebied Poeldijk

Prijs : € 1173

Poeldijk

Onbekend


Apartment For Rent In Voorstraat 98-B 2685EP Westland Poeldijk Centrumgebied Poeldijk Ga naar Huurportaal-nl

voor € 1173

Bekijk alle informatie en beschikbaarheid bij Huurportaal-nl.

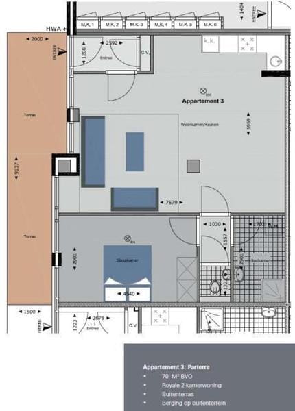
TE HUUR - VOORSTRAAT 98B IN POELDIJK Aan de Voorstraat in het gezellige centrum van Poeldijk is het voormalige Rabobankgebouw in 2013 getransformeerd tot een kleinschalig en verzorgd appartementencomp...