Bekijk alle informatie en beschikbaarheid bij Huurportaal-nl.
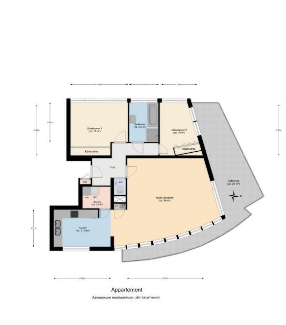
Beschrijving In de binnenstad van Maastricht, nabij de pittoreske binnenhaven 'het Bassin', ligt dit gemeubileerde penthouse met 2 slaapkamers en dakterras. Dit unieke penthouse is gelegen in een k...