Bekijk alle informatie en beschikbaarheid bij Huurportaal-nl.
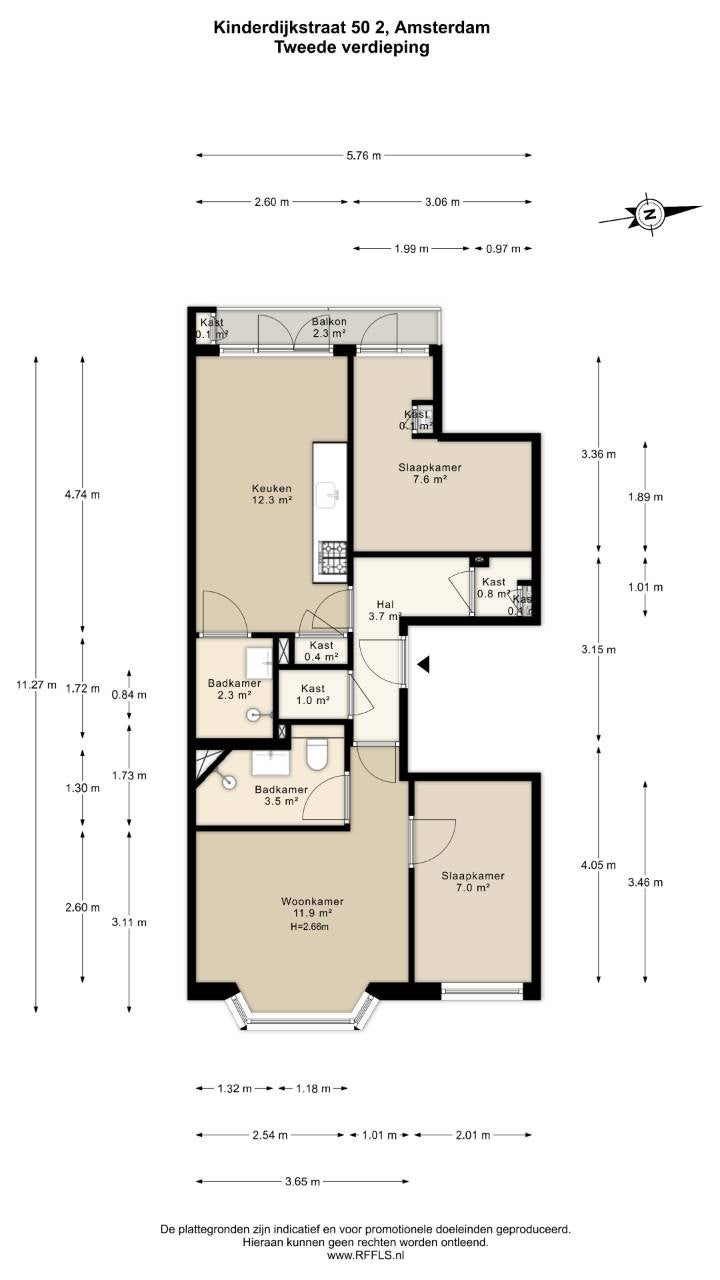
Beschrijving Wonen op een rustige, groene locatie in Amsterdam, met een slimme indeling, veel licht en een nette afwerking. Dit is een woning die direct comfortabel aanvoelt. Kinderdijkstraat 50-2,...